Informativa sintetica sui cookie
Questo sito Internet utilizza cookie "tecnici" e di "terze parti" per arricchire la navigazione e migliorare l'esperienza d'uso, per saperne di più consulta l'informativa estesa.

Immobiliare dei Mille sas - Via Emilia Ospizio, 100/G - 42122 Reggio Emilia (RE) - Tel.: 0522 431030 - Email: info@immobiliaredeimille.it
Rif. 518
Pagina precedente

Casa singola in vendita

Quattro Castella - MONTECAVOLO

€ 465.000

Descrizione

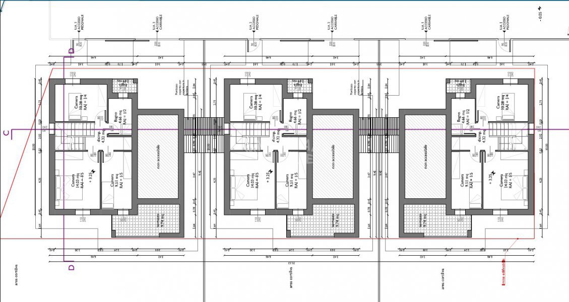
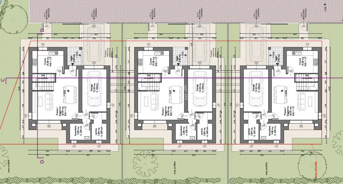
Rif. 518 - Proponiamo in vendita ville di nuova costruzione di ampia metratura e con giardino privato. Tra le disponibili presentiamo la n2 che presenta le seguenti caratteristiche: al piano terra troviamo salone, cucina abitabile, bagno + cantina , garage singolo e giardino privato di 150 mq. Salendo al piano superiore ci sono 3 camere ( 1 matrimoniale, 1 camera 3/4, 1 singola), bagno e 2 balconi. Ancora disponibile altra abitazione di metratura superiore. Per avere maggiori informazioni e visionare il progetto completo contattare l'ufficio allo 0522/431030.
Classe energetica: A4
I.P.E.: 1,00 kWh/m2anno

Caratteristiche

Superficie 182 m2
Piano P.T +1°
Ascensore no
Camere 3
Bagni 2
Garage 1
Cantina
Riscaldamento autonomo
Giardino 150 m2
Condividi

Richiedi maggiori informazioni

Contattaci ai seguenti recapiti o compila il form per ricevere maggiori informazioni.

Immobiliare dei Mille sasTelefono 0522 431030